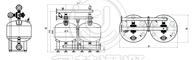
拦截泥沙截污型砂石过滤器的核心竞争力,在于其针对性优化的截污结构与滤料选择。设备内部采用多层级滤料截留 + 立体拦截通道设计,上层选用颗粒均匀的粗石英砂,可初步拦截大粒径泥沙与悬浮杂质;中层搭配级配合理的细石英砂,进一步过滤中等粒径污染物;下层铺设高密度无烟煤滤料,精准捕捉微小颗粒与胶体物质,形成 “层层递进、全面拦截” 的过滤体系。同时,滤料层经过特殊级配处理,孔隙率高达 45%-50%,既能保证水流顺畅通过,又能最大化提升截污容量,单周期截污量较传统过滤器提升 60% 以上,有效避免杂质穿透滤料层,确保出水水质清澈达标。
从实际应用场景来看,该过滤器的适配性广泛且实用。在农业灌溉领域,面对河水、井水、水库水中的泥沙、藻类等杂质,它能高效拦截,防止滴灌管、喷头堵塞,保障灌溉水均匀输送至作物根部,减少因设备堵塞导致的灌溉不均问题,助力作物稳定增产;在工业循环水系统中,可精准拦截循环水中的泥沙、金属碎屑等杂质,避免杂质附着在换热器管壁形成污垢,降低设备传热效率,延长换热器、水泵等核心设备的使用寿命,减少企业设备维修成本;在市政供水预处理环节,能有效去除原水中的泥沙、腐殖质等污染物,降低后续消毒工艺的负荷,提升自来水水质,保障居民用水安全;在水产养殖领域,可过滤养殖水体中的残饵、粪便等杂质,改善水体环境,减少病害发生,为鱼虾生长提供清洁水质。
相较于普通砂石过滤器,拦截泥沙截污型砂石过滤器在截污效率与使用经济性上优势显著。普通过滤器截污容量有限,平均每 3-5 天需停机反冲洗,每次反冲洗消耗大量水资源,且易导致滤料流失;而拦截泥沙截污型砂石过滤器因截污容量大,反冲洗周期可延长至 7-10 天,反冲洗用水量减少 30%,滤料损耗率降低至 1% 以下,大幅减少水资源浪费与滤料更换成本。同时,设备采用耐腐蚀碳钢或不锈钢壳体,抗老化、抗磨损性能强,使用寿命可达 8-10 年,长期使用能为企业节省大量设备更换与运维开支。
在各行业对水质要求不断提高、设备运维成本控制日益严格的当下,拦截泥沙截污型砂石过滤器以 “高效截污、稳定过滤、节能省耗、耐用可靠” 的核心优势,成为解决泥沙污染问题的优选设备。无论是保障农业灌溉顺畅、工业生产稳定,还是守护市政供水安全、水产养殖效益,它都能提供专业的截污过滤解决方案,为企业降本增效、高质量发展筑牢水质防线。

总部办公楼
生产厂区
生产车间
生产车间
生产场景
国际合作
中石化
三一重工
安钢集团
国家能源集团
中石油
中国铁路总公司
中国一汽
Filtrec
玖龙纸业
国家电投
新乡市利菲尔特滤器制造
新乡市利菲尔特滤器股份有限公司成立于2008年,专注于流体环保行业,是专业研发、制造和销售过滤设备、空气净化设备、海水淡化设备、污水处理设备、弃资源综合利用设备、环境保护专用设备的股份制高新技术企业。